Nhà chữ L 2 tầng 80m2 được rất nhiều gia đình chọn thiết kế. Kiểu nhà này không chỉ có tính thẩm mỹ cao mà còn mang đến không gian sống tiện nghi, phù hợp với kiểu thời tiết nóng ẩm, mưa nhiều như tại Việt Nam.
Nếu bạn đang ấp ủ dự định xây một căn nhà chữ L 2 tầng rộng 80m2, tham khảo ngay những mẫu thiết kế tuyệt đẹp dưới đây do Homedy sưu tầm.
Biệt thự chữ L 2 tầng 80m2 đẹp ấn tượng
Mẫu biệt thự ấn tượng với hệ thống cổng và hàng rào trắng đẹp mắt. Khuôn viên xung quanh nhà đầy cây cỏ, tạo nên một môi trường sống chan hòa với thiên nhiên.

Căn nhà được thiết kế hài hòa với không gian ngoại cảnh, toát lên vẻ đẹp rất bình yên và trang nhã. Hệ mái thái vừa thẩm mỹ vừa giúp cách nhiệt và thoát nước hiệu quả.
Qua 3 bậc tam cấp sẽ đến khu vực phòng khách. Căn nhà chữ l 2 tầng 80m2 này sở hữu phòng khách rộng rãi, thông với không gian bếp ăn. Vừa đảm bảo sự tiện nghi trong việc sinh hoạt, ăn uống chung của các thành viên trong gia đình, vừa tạo cảm giác nhà rộng rãi, thoáng đãng hơn. Phòng vệ sinh được thiết kế kín đáo ngay cạnh bếp. Phòng ngủ ở tầng 1 có diện tích lớn, với cửa sổ nhìn ra sân vườn. Tầng 2 được bố trí với 3 phòng ngủ và 1 phòng thờ. Thiết kế giúp tối ưu diện tích và đáp ứng tốt nhu cầu sinh hoạt của các gia đình có đông thành viên.


Mẫu nhà chữ l 2 tầng 80m2 đơn giản
Căn nhà cũng được thiết kế với hệ mái thái bề thế, vững chắc mà vẫn vô cùng tinh tế. Căn nhà sơn trắng tinh khôi, thiết kế đơn giản nhưng lại mang đến một cảm giác vô cùng tươi mới và khỏe khoắn.

Khu vực ban công tầng 2 được thiết kế lam che, là nơi trồng cây, bố trí tiểu cảnh,… tạo nên một góc xanh tươi ngay trong ngôi nhà.
Tầng 1 gồm 1 phòng khách sang trọng, tiếp tới là cầu thang thông tầng. Bên trong có 01 phòng ngủ và 01 nhà vệ sinh chung. Từ sảnh phụ đi vào là phòng bếp ăn được trang bị nội thất cơ bản, nhỏ gọn.Tầng 2 gồm 2 phòng ngủ, ban công, 1 phòng wc và khu vực phơi phóng. Nhà vệ sinh tầng 2 được thiết kế bên ngoài để tối ưu diện tích và việc sử dụng chung được thuận tiện hơn.


Thiết kế nhà chữ l 2 tầng 80m2 mái thái xanh độc lạ
Mẫu nhà chữ l 2 tầng 80m2 có thiết kế khá mới mẻ, pha trộn giữa vẻ đẹp truyền thống với hiện đại. Mặt tiền ngôi nhà được chia làm 2 phần. Trong đó, phần nhà chính cấp 4 được dành riêng làm không gian thờ tự và là phòng khách sinh hoạt chung cho gia đình.

Tầng 2 được thiết kế với 1 phòng ngủ, 1 nhà vệ sinh chung và khu vực sân chơi, sân phơi quần áo. Đây là không gian được thiết kế để nghỉ ngơi, thư giãn. Đồng thời, có cũng được chú trọng thiết kế giúp nâng tầm không gian sống.


Thiết kế nhà chữ L 2 tầng mái đỏ nổi bật

Thiết kế ngoại thất không quá cầu kỳ, song căn nhà vẫn nổi bần bật với mái đỏ tươi rực rỡ. Cửa gỗ nâu trầm, sơn tường trắng sứ tất cả đều nhẹ nhàng, hài hòa và càng làm nổ bật thêm hệ mái thái đỏ ấn tượng.
Mặt bằng tầng 1 của ăn nhà gồm: 01 phòng khách, 01 phòng bếp ăn, 01 phòng ngủ và 1WC. Từ sảnh bước vào là phòng khách, tiếp tới là phòng ngủ rộng rãi. Phòng bếp được bố đặt ở bên phải nhà, ngay cạnh chữ L, có cửa đi ra sân sau. Nhà vệ sinh được bố trí ngay cạnh phòng ngủ dưới gầm cầu thang tiện dụng.

Mặt bằng tầng 2 được thiết kế bao gồm: 02 phòng ngủ, 01 WC, 01 phòng thờ và 01 sân phơi.

Biệt thự nhà chữ l 2 tầng 80m2 đẹp
Mẫu nhà chữ l 2 tầng 80m2 mái thái được thiết kế không quá cầu kỳ, nhưng vẫn toát lên vẻ đẹp hiện đại, sang trọng và tiện nghi. Phần mái lợp ngói bên trên mang đến sự vững chãi cho tổng thể công trình. Cửa chính, cửa phụ sử dụng chất liệu gỗ, còn lại là hệ thống cửa sổ được làm bằng kính cường lực khung nhôm.

Sảnh chính được thiết kế 2 trụ cột bằng đá vô cùng sang trọng. Vừa mang đến vẻ đẹp thẩm mỹ, vừa hợp phong thủy, mang tới nhiều mắn lộc tài lộc cho gia đình. Thiết kế mái thái ở sảnh đơn giản, thoát nước nhanh, hệ bậc tam cấp sang trọng, đẳng cấp, cuốn hút mọi ánh nhìn.

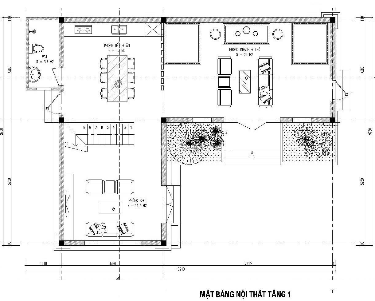
Mặt bằng tầng 1 gồm có phòng khách kết hợp phòng thờ. Nối tiếp là khu vực bếp ăn kết hợp phòng ngủ, đảm bảo sự tiện lợi trong quá trình nấu nướng cũng như sinh hoạt chung. Không gian phía trong cùng là phòng ngủ được thiết kế khép kín tiện nghi. WC chung được bố trí ngay cạnh cầu thang tiện lợi khi di chuyển.

Mặt bằng tầng 2 bao gồm có 03 phòng ngủ, 01 phòng sinh hoạt chung và 01 phòng vệ sinh chung. Các phòng tầng 2 đều có cửa sổ rộng, thoáng, nhìn ra khoảng sân quanh nhà, giúp đảm bảo không khí trong phòng được lưu thông thường xuyên.
Trên đây là tổng hợp 5 mẫu nhà chữ L 2 tầng 80m2 tuyệt đẹp cho bạn tham khảo. Chúc các bạn sớm sở hữu được một căn nhà đẹp như đúng mơ ước của mình!
>>> XEM THÊM: