Nhà chữ L 2 tầng 400 triệu mang đến một không gian sống thẩm mỹ, tiện nghi với chi phí phải chăng. Cùng tham khảo ngay những mẫu thiết kế nhà 2 tầng chữ L với chi phí xây dựng chỉ khoảng 400 triệu.
Mẫu nhà chữ L 2 tầng 60m2

Căn nhà mang phong cách trẻ trung, hiện đại với gam màu trắng – xám. Toàn bộ phần ngoại thất được sơn màu xám, kết hợp với hệ thống cột và lan can trắng. Ngoài ra, bề mặt tường mặt tiền còn được ốp đá hoa cương, vừa mang đến sự ấn tượng, vừa tạo nên nét sang trọng cho căn nhà.


Về thiết kế mặt bằng, tầng 1 căn nhà chữ L 2 tầng 400 triệu này gồm có: 01 gara để ô tô, 01 phòng khách, 01 bếp ăn và 01 nhà vệ sinh. Với kiểu kiến trúc chữ L, căn nhà có thêm 1 khoảng trống dùng làm chỗ để xe hoặc khu vực vui chơi cho trẻ.
Phòng bếp và khu vực ăn uống được thiết kế hẳn ở cuối căn nhà, nhằm hạn chế hiện tượng ám mùi. Bên cạnh đó, phòng bếp cũng được thiết kế với nhiều khe hở giúp không khí lưu thông tốt hơn. Phòng khách là nơi sinh hoạt chung của cả gia đình được bố trí rộng rãi, thông thoáng.
Tầng 2, căn nhà có 02 phòng ngủ có sẵn 02 nhà vệ sinh khép kín, đảm bảo sự riêng tư và tiện lợi khi sử dụng. Hệ thống các cửa sổ đều được làm bằng kính khung gỗ, mang đến nguồn ánh sáng tự nhiên dồi dào cho khắp căn nhà.
Tầng 2 của căn nhà chữ L 2 tầng 400 triệu này còn được thiết kế thêm một khu vực ban công mở. Đây là không gian tuyệt vời cho các thành viên trong gia đình có thể thư giãn, chuyện trò bên tách trà ấm nóng.
Mẫu nhà chữ L 2 tầng rộng 90m2

Đây là một căn biệt thự sang trọng với thiết kế mang phong cách truyền thống. Tông trắng, nâu vàng kết hợp với mái ngói xanh cùng các được chỉ cột vô cùng thân quen, gần gũi trong kiến trúc Việt Nam.
Các thức cột vuông vức tạo nên sự mạnh mẽ, giúp căn nhà thêm phần trẻ trung, mới mẻ. Các cột vuông được ốp đá hoa cương ở phần chân cột, làm tăng thêm vẻ sang trọng cho căn biệt thự chữ L 80m2.


Mặt bằng tầng 1 căn nhà chữ L 2 tầng 400 triệu rộng 80m2 gồm: 01 phòng khách, 01 phòng ngủ và 01 phòng bếp ăn, 01 nhà vệ sinh và 01 nhà kho. Phòng khách được bố trí rộng rãi, mang đến không gian sinh hoạt chung thoải mái cho các thành viên trong gia đình. Bếp ăn của căn nhà chữ L 2 tầng 400 triệu này cũng được bố trí ở sau cùng nhằm hạn chế mùi thức ăn.
Bên cạnh đó, mặt bằng tầng 1 ngôi nhà này còn được thiết kế thêm 1 phòng ngủ. Phòng ngủ này có thể dành cho ông bà, những người lớn tuổi khó leo trèo cầu thang. Giúp việc nghỉ ngơi được an toàn, thuận tiện.
Tầng 2 được thiết kế với 3 phòng ngủ và nhà vệ sinh. Phòng tắm diện tích lớn được bố trí bồn tắm mang đến cảm giác thư giãn tuyệt vời cho các thành viên trong gia đình mỗi khi bước chân vào phòng tắm
Mẫu nhà chữ L 2 tầng rộng 80m2
Nếu yêu thích phong cách tinh tế, yêu thích vẻ đẹp sang trọng bắt nguồn từ sự đơn giản thì mẫu nhà chữ L 2 tầng 400 triệu này chính là sự lựa chọn hợp lý dành cho bạn. Căn nhà có tông màu chủ đạo là trắng – xám kết hợp với mái ngói xanh trang nhã.

Các bức tường mặt tiền được ốp gạch hoặc được thiết kế với các đường chỉ ngang, tạo nên điểm nhấn ấn tượng, sang trọng hơn rất nhiều


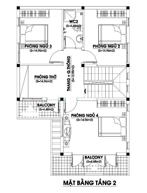
Căn nhà gồm 01 phòng khách, 01 bếp ăn, 01 phòng thờ, 04 phòng ngủ và 02 nhà vệ sinh.
-
Phòng khách rộng hơn 18m2, thoải mái cho các thành viên trong gia đình sinh hoạt chung hoặc đón tiếp khách khứa.
-
4 phòng ngủ đều có diện tích 14,96m2. Trong đó phòng ngủ ở tầng 1 được thiết kế phía sau đảm bảo không gian yên tĩnh khi nghỉ ngơi.
-
Bếp ăn sẽ được thiết kế nhiều khe hở, giúp cho việc lưu thông không khí tự nhiên trong nhà tốt hơn. Mang tới cho mọi người cảm giác thoải mái, thư giãn.
-
2 WC trong căn nhà chữ l 2 tầng 400 triệu này đều thiết kế bên ngoài các phòng ngủ để các thành viên sử dụng được thuận tiện, linh hoạt và. Đồng thời giúp tiết kiệm chi phí và diện tích.
Những điều cần lưu ý khi xây nhà 2 tầng giá 400 triệu
Nếu bạn đang có ý định thiết kế và xây dựng nhà chữ L 2 tầng 400 triệu, hãy lưu ý kỹ một số vấn đề dưới đây:
Xem xét diện tích đất xây dựng phù hợp
Với chi phí 400 triệu, bạn thể lựa chọn mẫu nhà ống 2 tầng diện tích khoảng 60 – 80m2.. Bên cạnh đó, với tầm giá này thì nên ưu tiên các thiết kế đơn giản, đa năng mà vẫn đảm bảo sự tiện nghi.

Giá cả vật liệu xây dựng
Giá vật liệu xây dựng mỗi vùng khu vực sẽ khác nhau. Vì thế bạn hãy khảo sát giá thị trường trước để tìm được địa chỉ cung cấp VLXD với giá thành hợp lý.
Bạn cũng có thể giao cho nhà thầu cung cấp giá cả nguyên vật liệu. Điều này giúp bạn tiết kiệm thời gian và có nguyên vật liệu ổn định, chi phí hợp lý. Nhà thầu sẽ có trách nhiệm về chất lượng vật liệu mà họ cung cấp cho bạn.
Nội thất trong nhà đơn giản
Với chi phí 400 triệu thì bạn không thể đầu tư đồ nội thất xa xỉ, đắt tiền. Hãy ưu tiên các món đồ nội thất đơn giản nhưng vẫn đảm bảo công năng. Nội thất càng đơn giản thì căn nhà của bạn sẽ càng rộng rãi, thoáng đãng hơn.
Tính toán tiền nhân công
Mức giá nhân công là một trong những nhân tố ảnh hưởng đến chi phí xây nhà chữ l 2 tầng 400 triệu. Hiện nay mức giá thuê nhân công chủ yếu dao động từ 1,1 – 1,7 triệu/m2.
Trên đây là tổng hợp những kinh nghiệm và gợi ý mẫu xây nhà 2 tầng giá 400 triệu đẹp, hợp lý. Hy vọng sẽ giúp bạn có thêm kiến thức hữu ích để hoàn thiện ngôi nhà tương lai của mình. Chúc các bạn thành công!
Quỳnh Thư