Thiết kế nhà 1 tầng 2 phòng ngủ 80m2 sở hữu ưu điểm nhỏ gọn, chi phí thấp trong khi đáp ứng nhu cầu của gia đình tới 4 thành viên. Nếu bạn cũng đang muốn tham khảo thiết kế nhà 1 tầng 2 phòng ngủ 80m2, dưới đây là gợi ý không thể tuyệt vời hơn!
Trong khi có những người thích những ngôi nhà sang trọng, nhiều tầng thì cũng có người lại yêu thích sự đơn giản của những ngôi nhà 1 tầng. Những ngôi nhà kiểu này không chỉ giúp tiết kiệm chi phí mà còn dễ bảo trì, đáp ứng nhu cầu xây dựng nhà ở trên diện tích lô đất nhỏ hơn.
Nếu bạn đang muốn xây dựng một ngôi nhà nhỏ nhắn và thông thoáng, thiết kế nhà 1 tầng 2 phòng ngủ 80m2 trong bài viết dưới đây của nền tảng kết nối bất động sản Homedy chắc chắn sẽ phù hợp với sở thích của bạn.
Đặc điểm thiết kế nhà 1 tầng 2 phòng ngủ 80m2
Thiết kế nhà 1 tầng 2 phòng ngủ 80m2 dưới đây có thể trông đơn giản nhưng nó có tất cả các phòng mà gia đình cần. Đó là sàn nhà cao thông thoáng, thiết kế tổng thể khoa học và hiện đại, mái nhà mạ kẽm với hiệu ứng ngói, sơn màu xanh xám hoàn chỉnh với các bức tường nổi bật bằng gạch, sàn bằng gạch trắng kết hợp với tường màu xám nhạt….

Thêm một ưu điểm cho thiết kế này là nhà được lợp bằng trần thông gió nên đảm bảo không gian mát mẻ vào mùa hè. Ngoài ra, thiết kế còn có một số cửa sổ kính bao quanh toàn bộ ngôi nhà, giúp lấy sáng và thông gió tự nhiên một cách hiệu quả nhất.
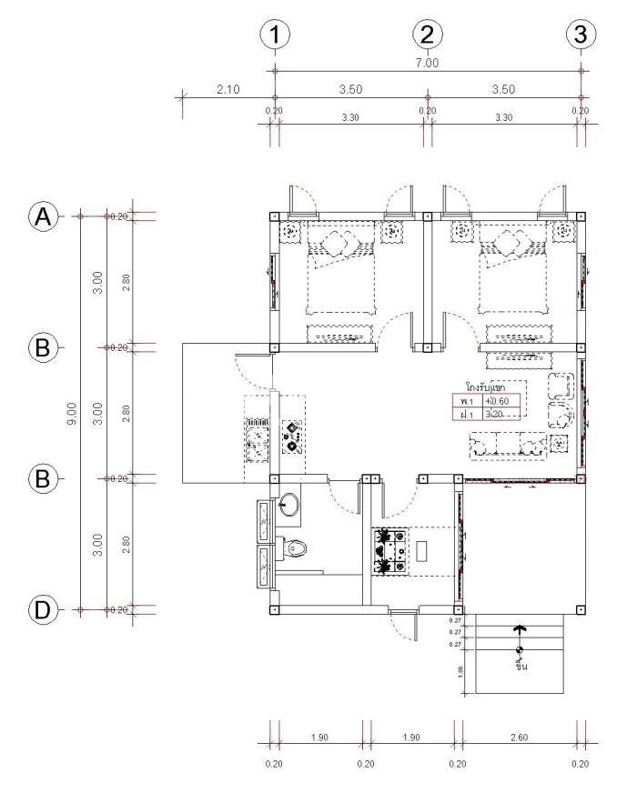
Với không gian sàn 80m2, thiết kế nhà đẹp này giúp gia chủ tối ưu công năng khi đi kèm 2 phòng ngủ và 2 nhà vệ sinh cùng phòng tắm, rất lý tưởng với các gia đình nhỏ từ 2 – 4 thành viên. Trong đó, 2 phòng ngủ có kích thước tương đương nhau. Nhà bếp đi kèm với một quầy hình chữ L được ốp bằng gạch màu xám nhạt với mặt bếp bằng đá granite đen sáng bóng. Mặc dù nhà bếp không lớn lắm nhưng có thể chứa vừa một dãy gas, một tủ lạnh lớn và một vài ngăn tủ để bạn cất những đồ dùng cần thiết.
Bên cạnh đó, thiết kế này còn là thiết kế nhà mở nên bạn có quyền tự do trang trí nội thất cho ngôi nhà tương lai của mình. Từ hiên nhà, bạn có thể tận dụng để bố trí một bàn ăn hoặc bàn uống nước, nơi các thành viên quây quần trò chuyện sau những giờ học tập và làm việc mệt mỏi.
Hình ảnh chi tiết bản thiết kế nhà 1 tầng 2 phòng ngủ 80m2
Thiết kế nhà 1 tầng 2 phòng ngủ phù hợp với đại đa số nhu cầu nhà ở của các gia đình trẻ tại vùng nông thôn ở Việt Nam. Xét về sự sang trọng, thiết kế có thể không đáp ứng nhưng không thể phủ nhận cảm giác ấm cúng, gọn gàng mà chúng mang lại đối với gia chủ.

Xem sơ đồ mặt bằng của ngôi nhà một tầng này tại đây:




Thiết kế nhà 1 tầng 2 phòng ngủ 80m2 giá rẻ
Nếu bạn đang tìm kiếm một mẫu thiết kế nhà vừa túi tiền với 2 phòng ngủ, thiết kế nhà 1 tầng 2 phòng ngủ giá rẻ này có thể là nguồn cảm hứng thú vị. Nhìn vào bản vẽ mặt bằng bên dưới, khu vực đầu tiên bạn sẽ thấy khi bước vào cửa chính là khu vực phòng khách ở bên trái và phòng ngủ đầu tiên ở bên phải.

Phòng khách thông với phòng bếp và phòng ăn. Để tiết kiệm và tối đa hóa không gian, khu vực tiếp khách và ăn uống được kết hợp với nhau.

Mặc dù diện tích sàn nhỏ nhưng nó vẫn phù hợp với hai phòng ngủ. Hoàn hảo với không gian cho một chiếc giường cỡ lớn, một tủ quần áo và tủ âm tường.

Sơ đồ tầng thiết kế nhà 1 tầng 2 phòng ngủ 80m2 giá rẻ:
Dưới đây là sơ đồ thiết kế nhà 1 tầng 2 phòng ngủ hiện đại với mức giá hợp lý, mời bạn cùng tham khảo:
- 2 phòng ngủ
- 1 nhà vệ sinh và nhà tắm
- Phòng khách
- Phòng ăn
- Phòng bếp



Trên đây là bản vẽ thiết kế nhà 1 tầng 2 phòng ngủ 80m2 do Homedy tổng hợp lại. Với chi phí chỉ từ 300 triệu đồng, bạn hoàn toàn có thể sở hữu một không gian sống hiện đại và tiện ích cho riêng mình. Đừng quên theo dõi, cập nhật những tin tức mới nhất về thị trường mua bán nhà đất tại Homedy ngay hôm nay!