Cùng tham khảo những mẫu nhà chữ L 2 tầng 600 triệu tuyệt đẹp cho kiến trúc sư gợi ý. Với khoản tài chính tầm trung, bạn sẽ có được một không gian sống thẩm mỹ và vô cùng tiện nghi.
Dự trù chi phí xây nhà chữ l 2 tầng 600 triệu
Trước khi xem những mẫu nhà chữ L 2 tầng đẹp, hãy cùng Homedy dự trù các khoản chi phí gói gọn trong 600 triệu. Đây là bước vô cùng quan trọng, giúp bạn tính toán được các khoản chi tiết VLXD, nhân công xây dựng,… một cách chính xác và phù hợp với ngân sách.

Hiện nay, giá thi công trọn gói nhà ở dao động từ 4.500.000 VNĐ – 6.000.000 VNĐ/m2. Từ mức giá này, bạn có thể nhân với diện tích nhà để dự trù được khoản chi phí xây dựng.
Hoặc nếu không chọn nhà thầu xây dựng trọn gói, bạn cũng có thể dự trù chi phí xây nhà chữ L 2 tầng 600 triệu dựa trên các hạng mục:
-
Xây phần thô: khoảng 400.000.000 VNĐ
-
Gạch lát sàn, ốp sàn, xây tường: 35.000.000 VNĐ
-
Sơn nhà: khoảng 25.000.000 VNĐ
-
Hệ thống cửa chính, cửa phụ, cửa sổ: 30.000.000 VNĐ
-
Nội thất cơ bản phòng khách: 30.000.000 VNĐ
-
Nội thất cơ bản 03 phòng ngủ: 25.000.000 VNĐ
-
Nội thất cơ bản nhà vệ sinh: 15.000.000 VNĐ
-
Nội thất bếp ăn cơ bản: 20.000.000 VNĐ
-
Hệ thống điện, nước, mạng internet: 26.000.000 VNĐ
-
Chi phí phát sinh: 25.000.000 VNĐ
Tổng nhà chữ l 2 tầng: 631 triệu đồng
Hy vọng dựa vào bảng dự trù chi phí xây nhà chữ L 2 tầng này sẽ giúp bạn tránh được những vấn đề phát sinh về tài chính. Đây cũng chính là một phần trong bước đầu tiên xây dựng tổ ấm của bạn.
Các mẫu nhà nhà chữ l 2 tầng 600 triệu đẹp
Dưới đây, hãy cùng bất động sản Homedy tiếp tục chiêm ngưỡng những gợi ý nhà 2 tầng chữ L được xây dựng trong khoảng 600 triệu.
Mẫu nhà 2 tầng chữ L 100m2 600 triệu
Đây là mẫu thiết kế biệt thự chữ L có kiến trúc đặc biệt. Sự kết hợp hài hòa giữa kiến trúc hiện đại xen lẫn ngoại thất gỗ có phần cổ kính khiến không gian trở nên vô cùng bắt mắt.



Chiêm ngưỡng từ bên ngoài, những ô cửa kính lớn cùng ánh đèn vàng phản chiếu càng tạo cảm giác nhẹ nhàng, mộc mạc và vô cùng ấm áp. Tuy thiết kế không quá phá cách, độc đáo thế nhưng căn nhà 2 tầng chữ L 100m2 này đã tự tạo vẫn giữ một nét khác biệt vô cùng hút mắt.
Mẫu nhà chữ L 2 tầng có gác mái 600 triệu
Nhắc đến thiết kế nhà có gác lửng, có lẽ không ít người nghĩ đến một tầng lửng ở tầng một. Ít ai nghĩ tới những thiết kế gác mái kiểu châu Âu. Phần gác mái ở tầng 2 góp phần trong việc tăng diện tích sử dụng. Nhờ đó, cải tạo phần lớn không gian sống cho gia đình.

Mẫu nhà chữ l 2 tầng 600 triệu này có điểm nhấn nằm thiết kế phần mái. Hệ mái thái có độ dốc vừa phải, kéo dài xuống phần ban công tầng 2. Bên cạnh đó, nó còn có tác dụng giảm bớt ánh nắng, mưa hắt vào nhà. Nhờ thiết kế đặc biệt này, gia chủ có thể tận dụng phần ban công để làm không gian thư giãn hoặc phơi phóng quần áo.
Mẫu nhà chữ L 2 tầng 600 triệu rộng 80m2
Nếu bạn yêu thích phong cách hiện đại, đơn giản nhưng vẫn trang trọng thì mẫu thiết kế dưới đây là sự chọn lựa phù hợp.

Căn nhà với những khối hộp, cột trụ vuông vắn tạo nên vẻ đẹp khỏe khoắn, vững chãi. Sự kết hợp hài hòa giữa gam màu trắng kem với những mảng tường, cột kèo gỗ tạo nên sự ấn tượng độc đáo vô cùng sang trọng.
Cửa chính lẫn cửa phụ, cửa sổ đều được thiết kế đồng bộ với tổng thể ngoại thất với chất liệu kính và gỗ tự nhiên.
Về thiết kế nội thất, ngôi nhà gồm 1 phòng khách, 1 bếp ăn, 3 phòng ngủ, 1 phòng sinh hoạt chung và sân thượng. Không gian các phòng đều rất rộng rãi, thoáng đãng với đầy đủ ánh sáng tự nhiên. Mẫu nhà chữ L 2 tầng rộng 80m2 này hoàn toàn phù hợp cho những gia đình từ 2 – 3 thế hệ cùng chung sống.
Mẫu nhà chữ L 2 tầng 600 triệu phong cách cổ
Đây là căn biệt thự chữ L 2 tầng có kiến trúc lạ mắt. Thiết kế đan cài giữa đường nét cổ kính với màu sắc hiện đại, tạo nên một căn nhà có 1 – 0 – 2.

Chiêm ngưỡng từ xa, những ánh đèn vàng phải chiếu từ không gian bên trong tạo nên cảm giác vô cùng ấm cúng, thảnh thơi.
Còn gì tuyệt vời hơn một không gian sống đầm ấm, gần gũi mà vẫn hội tụ đầy đủ những công năng hiện đại?
Ngôi nhà với rất nhiều chi tiết làm từ gỗ tự nhiên, từ cổng vào, đến hệ thống cửa chính, cửa sổ, cửa thông gió,…
Ngoài những mảng gỗ kẻ ngang hiện đại, gia chủ còn kết hợp thêm cả những
chiếc cửa thông gió bằng gỗ với nhiều đường nét hoa văn uốn lượn mang đậm phong cách cổ truyền.
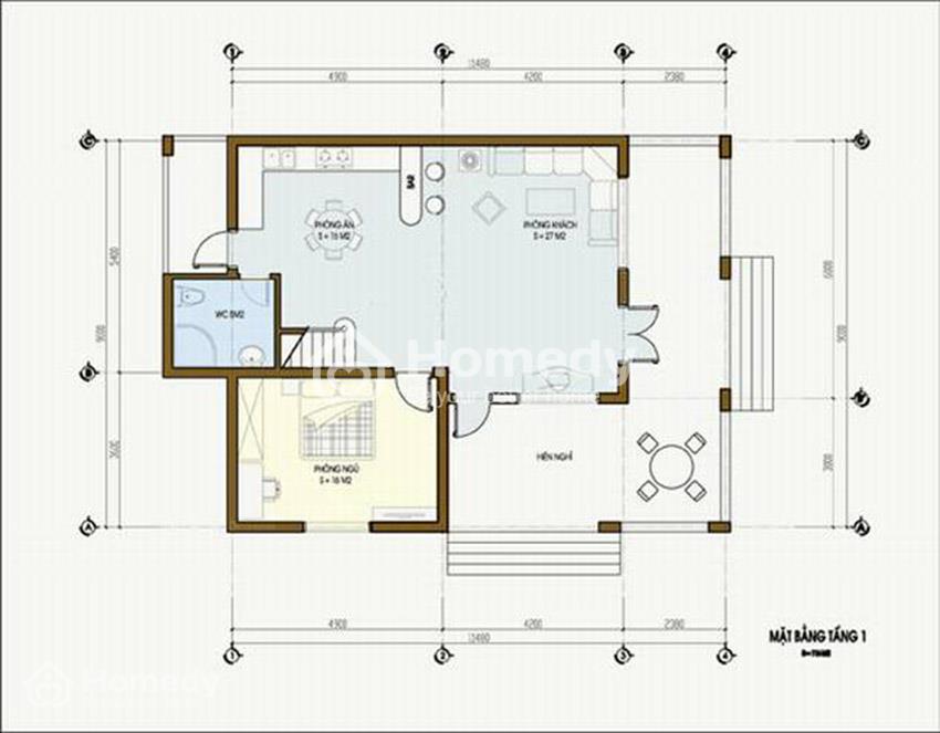
Dưới đây, hãy cùng Homedy tham khảo thêm bản vẽ nội thất mẫu chữ L 2 tầng 600 triệu này:
Để chiêm ngưỡng thêm những mẫu thiết kế nhà chữ l 2 tầng 600 triệu, truy cập ngay chuyên mục Thiết kế nhà đẹp của Homedy. Hàng nghìn mẫu thiết kế thuộc đa dạng phong cách, cập nhật theo xu hướng mới nhất chắc chắn sẽ giúp bạn có những gợi ý tuyệt vời!
Quỳnh Thư