Nhà ống 3 tầng 5x15m 4 phòng ngủ với những ưu điểm về tối ưu không gian, tiết kiệm chi phí đã và đang là phương án thiết kế được nhiều gia đình lựa chọn.
Nếu bạn cũng đang có nhu cầu tìm hiểu những mẫu nhà ống 3 tầng 5x15m 4 phòng ngủ hiện đại với chi phí thấp, hãy tham khảo ngay bài viết dưới đây của Homedy.
Ưu điểm của kiểu nhà ống 3 tầng 5x15m 4 phòng ngủ là gì?
Không phải ngẫu nhiên mà nhà ống 3 tầng lại trở nên phổ biến và được nhiều gia đình từ thành thị tới nông thôn yêu thích. Đặc biệt là các thiết kế nhà ống 3 tầng 5 15m, chúng được xem là mẫu nhà có nhiều ưu điểm nhất khi vừa giúp tối ưu diện tích, vừa tiết kiệm chi phí xây dựng.

Nhà ống 3 tầng 5x15m 4 phòng ngủ sở hữu nhiều ưu điểm nổi bật
Ngoài ra, với các thiết kế nhà ống 3 tầng 5x15m 4 phòng ngủ, bạn có thể thiết kế theo nhiều phong cách khác nhau mà vẫn đáp ứng không gian thoải mái cho từ 5-7 thành viên cùng sinh sống.
Ngày nay, nhiều người có xu hướng mua nhà đất và chọn thiết kế nhà 3 tầng 4 phòng ngủ thay vì lựa chọn mua các căn hộ chung cư. Lý do là với cùng một mức chi phí từ 2-4 tỷ đồng, việc sở hữu một căn nhà ống 3 tầng thiết kế theo ý thích và không bị thu các khoản phí dịch vụ hay quy định của ban quản lý vẫn là sự lựa chọn tối ưu hơn cả.
Một số lưu ý khi xây nhà ống 3 tầng 5x15m 4 phòng ngủ
Trước khi có ý định xây nhà, việc lựa chọn cho mình một thiết kế nhà ống 3 tầng 4 phòng ngủ diện tích 5x15m đóng vai trò vô cùng quan trọng. Chúng không chỉ giúp gia chủ định hình được không gian sau khi công trình hoàn thành, khắc phục những lỗi về phong thủy nhà ở mà còn có thể tránh bị lãng phí khi xây dựng.
Nhờ vậy, công trình nhà ống 3 tầng 5x15m 4 phòng ngủ của bạn vừa có thiết kế hài hòa và ấn tượng, vừa đảm bảo sự thuận tiện trong quá trình sinh hoạt lại tiết kiệm chi phí vật liệu xây dựng, sửa chữa, chắp vá những lỗi sai khi thi công.

Cần lưu ý gì khi xây nhà ống 3 tầng 5x15m 4 phòng ngủ?
Để công trình được diễn ra chơn chu, bạn cần tham khảo các thiết kế trên mạng Internet hoặc các mẫu nhà xung quanh khu mình sinh sống rồi tiến hành lên bản vẽ nhà ống 3 tầng 5x15m 4 phòng ngủ. Nếu không quá am hiểu về thiết kế, bạn có thể thuê các nhà thầu thiết kế xây dựng bản vẽ trước khi tiến hành thi công.
Ngoài ra, một đặc điểm bạn cần lưu ý là vấn đề ngân sách hay còn gọi là chi phí xây dựng. Thông thường khi xây dựng nhà ở, chi phí thực tế thường tăng tối thiểu 10%/tổng chi phí dự trù. Do đó, bạn nên chuẩn bị ngân sách dư khoảng 10-30% so với chi phí dự trù khi xây dựng để công trình không gặp gián đoạn trong quá trình thi công.
Tổng hợp các mẫu nhà ống 3 tầng 5x15m 4 phòng ngủ hiện đại
Tại thành phố lớn, việc thiết kế nhà ống 3 tầng 4 phòng ngủ đã trở nên quá quen thuộc bởi đặc điểm chia lô, mặt tiền hẹp ở hầu hết các lô đất nền. Trong khi đó, nhà ống 3 tầng 5x15m 4 phòng ngủ hiện đại lại giải quyết hiệu quả bài toán bí bách, chật hẹp của không gian. Đồng thời, mang đến cho mọi thành viên trong gia đình sự thoải mái, thư giãn, cân bằng lại cuộc sống.
Dưới đây là các mẫu thiết kế nhà ống 3 tầng 5x15m 4 phòng ngủ đẹp theo phong cách hiện đại đáng tham khảo:
Mẫu nhà ống 3 tầng 5x15m 4 phòng ngủ hiện đại phổ biến
Đây là mẫu thiết kế nhà ống 3 tầng 4 phòng ngủ đáp ứng nhu cầu sinh hoạt của gia đình từ 5-7 thành viên. Công trình khi hoàn thiện có vẻ đẹp thẩm mỹ cao với mặt tiền màu trắng – xám tao nhã và thanh thoát, mặt tiền 5m gồm hệ thống sân trước, hệ cổng sắt 4 cánh và 2 cánh đơn giản….

Phối cảnh mặt tiền nhà ống 3 tầng 5x15m2 4 phòng ngủ

Mặt bằng tầng 1
Mô tả thiết kế tầng 1 – mẫu nhà ống 3 tầng 5x15m 4 phòng ngủ: Từ khoảng sân trước nhà hướng vào là khu vực gara để xe. Kế đến là phòng khách được bố trí khoa học và trang trọng. Sau phòng khách là phòng bếp, được ngăn cách bằng bản thang thông tầng và bên dưới bản thang được KTS bố trí một toilet nhỏ.

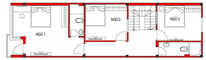
Mặt bằng tầng 2
Mô tả thiết kế tầng 2 – mẫu nhà ống 3 tầng 5x15m 4 phòng ngủ: Đi lên cầu thang tầng 2 là 3 phòng ngủ với tiện nghi đầy đủ. Trong đó, phòng ngủ master có vệ sinh khép kín hướng ra ban công đảm bảo không gian riêng tư cho vợ chồng gia chủ. Hai bên vế thang là hai phòng ngủ dành cho các con. Còn lại là 1 toilet bố trí ở góc cuối nhà nhằm phục vụ nhu cầu cho các thành viên còn lại.

Mặt bằng tầng 3
Mô tả thiết kế tầng 3 – nhà ống 3 tầng 5x15m 4 phòng ngủ: Tại tầng 3, KTS bố trí 1 phòng ngủ và 1 phòng thờ. Trong đó, phòng ngủ hướng ra ban công để lấy ánh sáng và gió thoáng mát, tạo ra nhiều không gian nghỉ ngơi hơn cho gia chủ. Bàn thờ được thiết kế theo tiêu chuẩn phong thủy nhà ở quay về hướng tốt. Trong cùng là sân giặt phơi, nơi giúp gia chủ thư giãn cùng những chậu tiểu cảnh hoặc dụng cụ thể dục.
Mẫu nhà ống 3 tầng 5x15m 4 phòng ngủ lệch tầng
Dưới đây là thiết kế nhà ống 3 tầng 5x15m 4 phòng ngủ lệch tầng sang trọng và tinh tế, thích hợp với những ngôi nhà mặt phố. Căn nhà được chia làm 2 cửa ra vào, 1 cửa lớn cho ô tô và cửa nhỏ đủ để gia chủ ra vào.

Phối cảnh mặt tiền nhà ống 3 tầng 5x15m 4 phòng ngủ lệch tầng

Bản cắt nhà ống 3 tầng 5x15m 4 phòng ngủ lệch tầng
Với thiết kế khoa học, phô diễn được những nét tinh tế và hiện đại, thiết kế nhà ống lệch tầng 3 tầng 5x15m 4 phòng ngủ này chắc chắn sẽ là sự lựa chọn hấp dẫn đối với những gia đình trẻ.
Đừng quên truy cập nền tảng kết nối bất động sản Homedy để cập nhật thêm những thông tin mới nhất về tin tức thị trường nhà đất, thiết kế nhà đẹp bạn nhé!