Sở hữu một ngôi nhà cấp 4 2 phòng ngủ 70m2 đẹp, nhẹ nhàng thanh thoát và đặc biệt là chi phí rẻ là mơ ước của rất nhiều gia đình hiện nay.
Và nếu bạn cũng đang tham khảo các mẫu nhà cấp 4 2 phòng ngủ 70m2 giá rẻ, đẹp thì bài viết dưới đây từ BĐS Homedy thực sự đang dành cho bạn.
Lý do vì sao các mẫu nhà cấp 4 2 phòng ngủ 70m2 được ưa chuộng hiện nay?
Cùng với xu thế phát triển của xã hội, những ngôi nhà cao tầng với kiến trúc đa dạng, độc đáo đang ngày càng được xây dựng rộng rãi. Tuy nhiên, đi ngược lại với sự ngột ngạt chốn phồn hoa, không ít người lại muốn tìm cho mình một không gian nhà đẹp đơn giản, gần gũi và bình dị. Một trong số đó là thiết kế nhà cấp 4 2 phòng ngủ 70m2.

Thiết kế nhà cấp 4 2 phòng ngủ 70m2 đang rất được ưa chuộng hiện nay
Với những ưu điểm nổi bật như chi phí hợp lý, thiết kế nhẹ nhàng và đặc biệt là đáp ứng đầy đủ nhu cầu công năng sử dụng của gia chủ, nhà cấp 4 2 phòng ngủ 70m2 đã và đang trở thành sự lựa chọn của rất nhiều gia đình.
Theo đó, bạn có thể xây dựng nhà cấp 4 2 phòng ngủ 70m2 theo nhiều kiểu khác nhau, từ phong cách đến thiết kế như:
-
Nhà cấp 4 2 phòng ngủ 70m2 mái thái
-
Nhà cấp 4 2 phòng ngủ mái bằng 70m2
-
Nhà cấp 4 70m2 gác lửng 2 phòng ngủ
-
Nhà cấp 4 2 phòng ngủ 70m2 hiện đại
-
Nhà cấp 4 cổ điển 2 phòng ngủ 70m2
-
Nhà cấp 4 70m2 tân cổ điển 2 phòng ngủ
-
Nhà cấp 4 1 phòng thờ 2 phòng ngủ 70m2
Mẫu nhà cấp 4 2 phòng ngủ 70m2 đẹp kèm bản vẽ
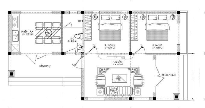
Dưới đây là mẫu nhà cấp 4 70m2 2 phòng ngủ của gia đình có 3 thành viên.
Thiết kế nhà cấp 4 2 phòng ngủ 70m2 gia đình 3 thành viên
Yêu cầu của gia chủ là mong muốn có một không gian sống ấm cúng, gần gũi với chi phí tiết kiệm nhất có thể. Theo các kiến trúc sư, để đáp ứng được yêu cầu gia chủ thì nhà cấp 4 2 phòng ngủ 70m2 là phương án khả thi nhất.
Theo bản thiết kế nhà đẹp dưới đây, tuy ngoại thất đơn giản thiếu cầu kỳ nhưng đây lại chính là điểm nhấn mà gia chủ mong muốn. Theo đó, kiến trúc sư cho biết vì không tập trung vào những chi tiết nhỏ nhặt nên sẽ giúp gia chủ tiết kiệm tối đa chi phí.

Mặt khác, sự đơn giản nhưng tinh tế, khoa học, mái thái kết hợp với mái bằng, thông giá từ ngoài vào, cửa kính xingfa lấy sáng… sẽ giúp cuộc sống sinh hoạt của gia chủ trở nên thuận tiện và dễ dàng hơn. Ngoài ra, phía trước cửa chính sẽ được bố trí thêm phần hiên đón khách, còn phần mái bằng vừa đủ che mưa, che nắng mà không bị khuất ánh sáng.
Bản vẽ thiết kế nhà cấp 4 2 phòng ngủ 70m2 đáp ứng công năng gia đình 3 thành viên
Với lợi thế gồm hai mặt tiền nên kiến trúc sư đã lựa chọn thiết kế 2 sảnh riêng biệt. Theo đó, sảnh chính thẳng hướng nhà lấy phong thủy nhà ở. Còn với sảnh phụ thì mở từ phòng bếp và phòng ăn nhìn ra nhằm giúp lưu thông không khí tốt hơn.

Với thiết kế nhà cấp 4 2 phòng ngủ 70m2 này, phòng khách có diện tích rộng rãi nằm đối diện 2 phòng ngủ. Bên trong là phòng ăn và phòng bếp kèm cửa sổ lấy sáng. Do mục đích của gia chủ xây dựng đáp ứng công năng cho 3 thành viên nên kiến trúc sư đã thiết kế 1 nhà tắm kết hợp WC. Vị trí các không gian vô cùng hợp lý, kể cả nhà vệ sinh cho khách đến chơi nhà sử dụng khi có nhu cầu.
Những mẫu nhà cấp 4 2 phòng ngủ 70m2 đẹp từ thiết kế của kiến trúc sư
Mẫu nhà cấp 4 2 phòng ngủ 70m2 sân rộng
Mẫu thiết kế nhà cấp 4 đẹp 70m2 với khoảng sân rộng lát gạch đỏ trước nhà. Hệ cột, đường gờ phào trang trí, giàn hoa bê tông và bồn hoa trước nhà…phong cách kiến trúc đơn giản nhưng hài hòa.

Màu vàng nhạt kết hợp với màu xám nhẹ nhàng, tinh tế để tạo cảm giác thư giãn và thoải mái. Tất nhiên là không thể thiếu đi được hệ cửa kính xingfa viền đen lấy sáng.
Phía bên trên, mái nhà bố trí thêm các cửa cổ nhỏ, như vậy thì ánh sáng có thể chiếu thẳng vào bên trong, thay thế cho giếng trời.
Thiết kế mẫu nhà cấp 4 2 phòng ngủ 70m2 cơ bản
70m2 với một mẫu nhà cấp 4 không phải là quá lớn nhưng nó cũng không phải là quá chật cho một gia đình có 3 thành viên. Không khí lưu thông, ánh sáng tự nhiên, các biện pháp chống nóng thực hiện đầy đủ. Nhờ vào đó, công trình nhà cấp 4 mái nhật này nhận được rất nhiều lời khen ngợi.

Phần mặt tiền tạo sự khác biệt khi hai bên cột ốp đá gạch thẻ để trang trí. Màu vàng may mắn, dễ nổi bật hơn so với các màu khác. Cửa chính được đẩy lùi vào bên trong để tránh mưa. Trong khi đó, cửa nhôm kính sẽ giúp lấy sáng tốt hơn nên dù bị đẩy lùi vào cũng không ảnh hưởng quá nhiều.
Mẫu nhà cấp 4 2 phòng ngủ 70m2 khung mạ kẽm
Để tiết kiệm chi phí cho mẫu nhà cấp 4 diện tích 70m2 này, kiến trúc sư tính toán sử dụng kết cấu khung thép mạ kẽm.

Phần mái lợp bằng ngói, kiểu dáng mái thái, dễ dàng lưu thông không khí. Nhờ vậy mà mức chi phí dự kiến cho mẫu nhà này là 450 triệu đồng.
Hi vọng bài viết trên đây sẽ giúp ích cho bạn trong quá trình tham khảo và lựa chọn những mẫu nhà cấp 4 2 phòng ngủ 70m2 đẹp, tiết kiệm chi phí. Nếu bạn có nhu cầu mua bán nhà đất hoặc cho thuê nhà đất, hãy truy cập website Homedy và đăng tin ngay để tiếp cận tới đông đảo khách hàng quan tâm!